Šachtový vyrovnávací prstenec se zámkem na kónusy a zákrytové desky s tloušťkou stěny 120 mm, lze použít i pro kónusy a zákrytové desky s tloušťkou stěny 100 mm. Výška 120 mm. Pod šachtové poklopy DN 600.
| Obrázek | Název | Průměr [mm] | Síla stěny [mm] | Výška [mm] | Hmotnost mj. [kg] | Cena s DPH | Dostupnost | Objednat |
|---|---|---|---|---|---|---|---|---|
Obrázek: ![]() | Název: Betonový šachtový vyrovnávací prstenec se zámkem BAR-V12 TBW-Q.1 63/12Kód: 1120 104/OZ | Průměr [mm]: 625 mm | Síla stěny [mm]: 120 mm | Výška [mm]: 120 mm | Hmotnost mj. [kg]: 81 kg/ks | Cena s DPH: 493 Kč | Dostupnost: Skladem na 4 místech | Objednat: -+ ks |
Nebo zavolejte +420 770 155 267
(v pracovní dny 8:00 - 14:00)
Vyrovnávací prstenec je stavební dílec k vyrovnání celkové výšky stavební konstrukce šachty a k uchycení odpovídajícího rámu a poklopu. Prstence jsou pokládány na vrchní díl šachty nebo na sebe navzájem vždy na maltové nebo zálivkové lože s minimální pevností 45 MPa a chemickou odolností XF4.
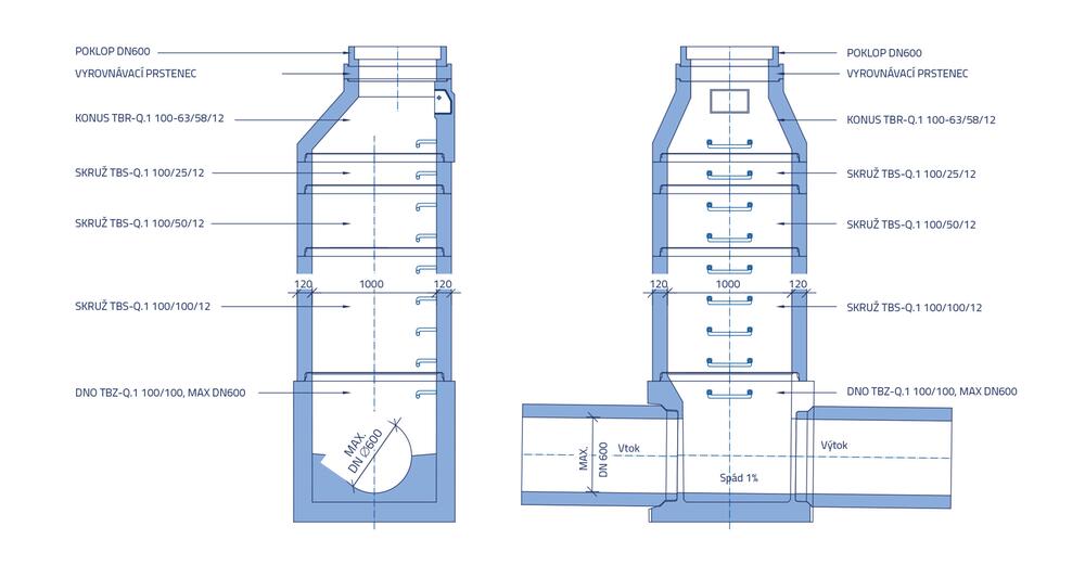
Příklad skladby šachtových prvků:

Nebo zavolejte +420 770 155 267
(v pracovní dny 8:00 - 14:00)




